A Habitação Colaborativa é uma resposta inovadora de carácter residencial temporário ou permanente, que assenta num modelo de habitação colaborativa e comunitária, organizada em unidades habitacionais independentes próximas ou contiguas, de apartamentos, moradias ou outra tipologia de habitação similar. Esta dispõe de áreas e espaços de utilização comum, bem como de serviços de apoio partilhados e subsidiários, promotores de uma interação social, intergeracionalidade, interculturalidade e inclusão social dos seus residentes.
O modelo Habitação Colaborativa tem por objetivo estimular e potenciar as capacidades da pessoa e famílias na definição de um plano de ação de base comunitária que permita a sua convivência e partilha de interesses, as relações intergeracionais e interculturais, a inclusão social com recurso a estruturas comuns e a outras da comunidade, que promovam o bem-estar físico, emocional e social dos seus residentes.
No sentido de fomentar as relações comunitárias e intergeracionais devem ser considerados destinatários da Habitação Colaborativa, famílias, pessoas idosas, pessoas com deficiência e outras em situação de vulnerabilidade social.
Sem prejuízo do referido no ponto anterior, poderão ser beneficiários da resposta de Habitação Colaborativa outros destinatários, desde que se encontrem com motivação para beneficiar e participar num contexto de dinâmica comunitária.
A resposta de Habitação Colaborativa rege-se pelos princípios da autodeterminação, da participação, da vida independente e da autonomia, de humanização, do respeito pela privacidade, pela individualidade, pela cidadania e pela qualidade de vida dos residentes.
A Habitação Colaborativa prossegue os seguintes objetivos:
- Garantir condições de bem-estar e qualidade de vida;
- Potenciar um ambiente seguro, confortável, acessível e humanizado;
- Promover estratégias de desenvolvimento da vivência em comum, numa lógica comunitária, com o respeito pela individualidade e interesses, bem como pela privacidade de cada pessoa e/ou família;
- Fomentar as relações sociais, a convivência, a entreajuda e o espírito de comunidade;
- Manter ou permitir a reunificação familiar;
- Prolongar a autonomia e a vida independente;
- Prevenir o isolamento social e/ou solidão, bem como evitar ou adiar o ingresso em estrutura residencial coletiva;
- Estimular a adoção de comportamentos ambientalmente sustentáveis e ecológicos;
- Potenciar a criação de emprego autossustentável.
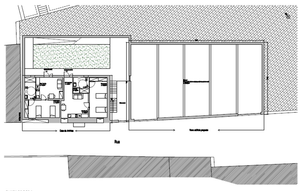
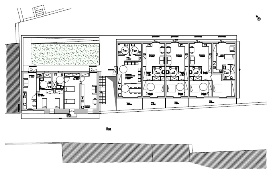
Para a presente candidatura, a qual se designou "SINERGIA: Uma Comunidade ao serviço da Inclusão Social" pretende-se intervir num edifício, inserido na propriedade da Instituição, comumente conhecido como a "Casa da Aninhas" que será requalificado e ampliado. Após intervenção, resultará num pequeno condomínio com 2 edifícios contíguos e operacionaliza-se nas tipologias 1 T0; 6 T1 e 1 T2, com partilha de espaços para serventia da "comunidade" e ligação pelo exterior.



Piso 0
Piso 1
